Elected Officials
Courts
Departments
Initiatives
Open Government
About
Login / Register
Home
/
Property & Tax Records
/
Property Records
/
Property & Tax Search
/
Parcel Profile
/
Sketches
Search for Another Parcel
Parcel Profile
Historical Card
Sketches
Photos
Tax Map
Taxes
Print View
Address: 418 CONNECTICUT DR
Parcel: 17041036011200
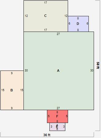
Parcel Sketches
Residential Card 1
A
MAIN
810 square feet
B
1SMAS MASONRY
135 square feet
C
MA_PT CONC/MAS PATIO
204 square feet
D
EFP ENCL FRAME PORCH
48 square feet
E
MA STOOP/TERR MAS STOOP
18 square feet
F
1SMAS MASONRY
40 square feet