Elected Officials
Courts
Departments
Initiatives
Open Government
About
Login / Register
Home
/
Property & Tax Records
/
Property Records
/
Property & Tax Search
/
Parcel Profile
/
Sketches
Search for Another Parcel
Parcel Profile
Historical Card
Sketches
Photos
Tax Map
Taxes
Print View
Address: 513 PITTSBURGH AVE
Parcel: 17041036022600
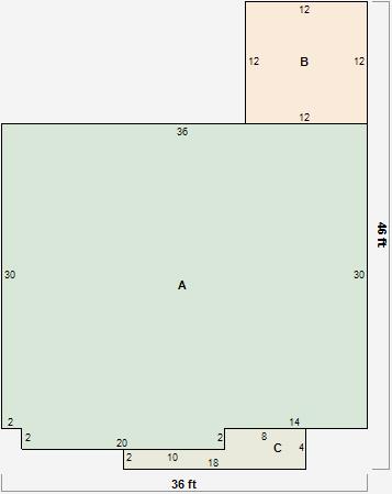
Parcel Sketches
Residential Card 1
A
MAIN
1120 square feet
B
ST_PT STONE OR TILE PATIO
144 square feet
C
EMP ENCL MASONRY PORCH
52 square feet