Address: 2152 S SHORE DR   Parcel: 17041038010200

Parcel Sketches


Residential Card 1

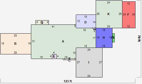
Residential Card 1
AMAIN1577 square feet
BUNFIN BSMT BASEMENT UNFINISHED 1SMAS MASONRY AT FN ATTIC-FINISHED 532 square feet
CUNFIN BSMT BASEMENT UNFINISHED MABAY MASONRY BAY 48 square feet
D MA_PT CONC/MAS PATIO 220 square feet
E OMP OPEN MASONRY PORCH 16 square feet
F FR GR FRAME GARAGE PART ATTIC FINISHED 288 square feet
G MABAY MASONRY BAY 16 square feet
H 1S FR ONE STORY FRAME PART ATTIC FINISHED 270 square feet
I MG/BG MASONRY/BRICK GARAGE AT UN ATTIC-UNFINISHED 648 square feet
JUNFIN BSMT BASEMENT UNFINISHED MABAY MASONRY BAY 12 square feet
K 1S FR ONE STORY FRAME PART ATTIC FINISHED 600 square feet