Elected Officials
Courts
Departments
Initiatives
Open Government
About
Login / Register
Home
/
Property & Tax Records
/
Property Records
/
Property & Tax Search
/
Parcel Profile
/
Sketches
Search for Another Parcel
Parcel Profile
Historical Card
Sketches
Photos
Tax Map
Taxes
Print View
Address: 2303 05 PEACH ST
Parcel: 18050002033300
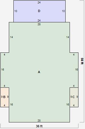
Parcel Sketches
Residential Card 1
A
MAIN
1416 square feet
B
OFP OPEN FRAME PORCH
36 square feet
C
EFP ENCL FRAME PORCH
36 square feet
D
OFP OPEN FRAME PORCH
240 square feet