Elected Officials
Courts
Departments
Initiatives
Open Government
About
Login / Register
Home
/
Property & Tax Records
/
Property Records
/
Property & Tax Search
/
Parcel Profile
/
Sketches
Search for Another Parcel
Parcel Profile
Historical Card
Sketches
Photos
Tax Map
Taxes
Print View
Address: 2326 GERMAN ST
Parcel: 18050010010000
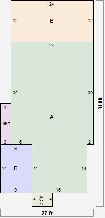
Parcel Sketches
Residential Card 1
A
MAIN
944 square feet
B
1S FR ONE STORY FRAME
288 square feet
C
MA STOOP/TERR MAS STOOP
24 square feet
D
EFP ENCL FRAME PORCH
126 square feet
E
1S FR ONE STORY FRAME
36 square feet