Elected Officials
Courts
Departments
Initiatives
Open Government
About
Login / Register
Home
/
Property & Tax Records
/
Property Records
/
Property & Tax Search
/
Parcel Profile
/
Sketches
Search for Another Parcel
Parcel Profile
Historical Card
Sketches
Photos
Tax Map
Taxes
Print View
Address: 2210 PARADE ST
Parcel: 18050014020600
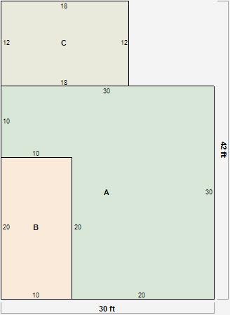
Parcel Sketches
Residential Card 1
A
MAIN
660 square feet
B
OFP OPEN FRAME PORCH
24 square feet
C
UNFIN BSMT BASEMENT UNFINISHED 1SMAS MASONRY 1S FR ONE STORY FRAME
60 square feet
D
OMP OPEN MASONRY PORCH
198 square feet
Residential Card 2
A
MAIN
700 square feet
B
FR GR FRAME GARAGE
200 square feet
C
OFP OPEN FRAME PORCH
216 square feet