Elected Officials
Courts
Departments
Initiatives
Open Government
About
Login / Register
Home
/
Property & Tax Records
/
Property Records
/
Property & Tax Search
/
Parcel Profile
/
Sketches
Search for Another Parcel
Parcel Profile
Historical Card
Sketches
Photos
Tax Map
Taxes
Print View
Address: 444 E 25 ST
Parcel: 18050019023200
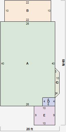
Parcel Sketches
Residential Card 1
A
MAIN
1040 square feet
B
EFP ENCL FRAME PORCH
220 square feet
C
FROVR FRAME OVERHANG
24 square feet
D
1S FR ONE STORY FRAME
24 square feet
E
EFP ENCL FRAME PORCH
90 square feet