Elected Officials
Courts
Departments
Initiatives
Open Government
About
Login / Register
Home
/
Property & Tax Records
/
Property Records
/
Property & Tax Search
/
Parcel Profile
/
Sketches
Search for Another Parcel
Parcel Profile
Historical Card
Sketches
Photos
Tax Map
Taxes
Print View
Address: 637 E 23 ST
Parcel: 18050026010700
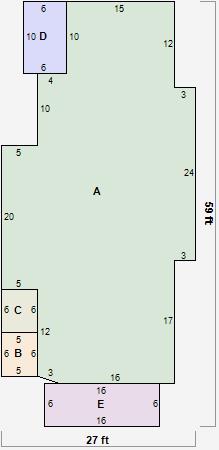
Parcel Sketches
Residential Card 1
A
MAIN
1136 square feet
B
OFP OPEN FRAME PORCH
30 square feet
C
1S FR ONE STORY FRAME
30 square feet
D
EFP ENCL FRAME PORCH
60 square feet
E
OFP OPEN FRAME PORCH EFP ENCL FRAME PORCH
96 square feet