Elected Officials
Courts
Departments
Initiatives
Open Government
About
Login / Register
Home
/
Property & Tax Records
/
Property Records
/
Property & Tax Search
/
Parcel Profile
/
Sketches
Search for Another Parcel
Parcel Profile
Historical Card
Sketches
Photos
Tax Map
Taxes
Print View
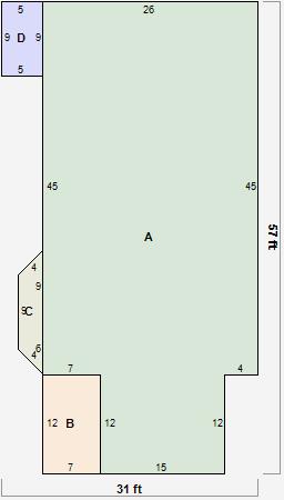
Address: 655 E 25 ST
Parcel: 18050027010200
Parcel Sketches
Residential Card 1
A
MAIN
1350 square feet
B
OFP OPEN FRAME PORCH OFP OPEN FRAME PORCH
84 square feet
C
FROVR FRAME OVERHANG
36 square feet
D
EFP ENCL FRAME PORCH
45 square feet