Elected Officials
Courts
Departments
Initiatives
Open Government
About
Login / Register
Home
/
Property & Tax Records
/
Property Records
/
Property & Tax Search
/
Parcel Profile
/
Sketches
Search for Another Parcel
Parcel Profile
Historical Card
Sketches
Photos
Tax Map
Taxes
Print View
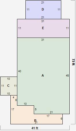
Address: 721 E 21 ST
Parcel: 18050029011200
Parcel Sketches
Residential Card 1
A
MAIN
1345 square feet
B
OFP OPEN FRAME PORCH
280 square feet
C
1S FR ONE STORY FRAME
110 square feet
D
CANPY CANOPY
231 square feet
E
MA_PT CONC/MAS PATIO
341 square feet