Elected Officials
Courts
Departments
Initiatives
Open Government
About
Login / Register
Home
/
Property & Tax Records
/
Property Records
/
Property & Tax Search
/
Parcel Profile
/
Sketches
Search for Another Parcel
Parcel Profile
Historical Card
Sketches
Photos
Tax Map
Taxes
Print View
Address: 730 E 22 ST
Parcel: 18050029012500
Parcel Sketches
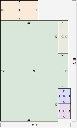
Residential Card 1
A
MAIN
976 square feet
B
1S FR ONE STORY FRAME 1S FR ONE STORY FRAME
120 square feet
C
OFP OPEN FRAME PORCH
52 square feet
D
EFP ENCL FRAME PORCH
30 square feet
E
OFP OPEN FRAME PORCH
30 square feet