Elected Officials
Courts
Departments
Initiatives
Open Government
About
Login / Register
Home
/
Property & Tax Records
/
Property Records
/
Property & Tax Search
/
Parcel Profile
/
Sketches
Search for Another Parcel
Parcel Profile
Historical Card
Sketches
Photos
Tax Map
Taxes
Print View
Address: 736 E 24 ST
Parcel: 18050030012800
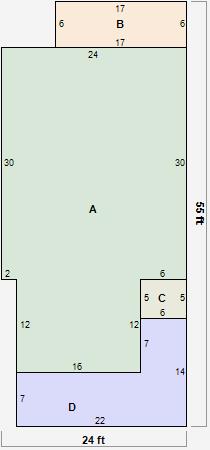
Parcel Sketches
Residential Card 1
A
MAIN
912 square feet
B
EFP ENCL FRAME PORCH
102 square feet
C
EFP ENCL FRAME PORCH OFP OPEN FRAME PORCH
30 square feet
D
OFP OPEN FRAME PORCH OFP OPEN FRAME PORCH
196 square feet