Elected Officials
Courts
Departments
Initiatives
Open Government
About
Login / Register
Home
/
Property & Tax Records
/
Property Records
/
Property & Tax Search
/
Parcel Profile
/
Sketches
Search for Another Parcel
Parcel Profile
Historical Card
Sketches
Photos
Tax Map
Taxes
Print View
Address: 841 43 E 21 ST
Parcel: 18050033010900
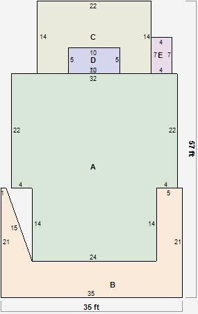
Parcel Sketches
Residential Card 1
A
MAIN
1040 square feet
B
OFP OPEN FRAME PORCH
399 square feet
C
1S FR ONE STORY FRAME
308 square feet
D
1S FR ONE STORY FRAME
50 square feet
E
FR UT FRAME UTILITY BUILDING
28 square feet