Elected Officials
Courts
Departments
Initiatives
Open Government
About
Login / Register
Home
/
Property & Tax Records
/
Property Records
/
Property & Tax Search
/
Parcel Profile
/
Sketches
Search for Another Parcel
Parcel Profile
Historical Card
Sketches
Photos
Tax Map
Taxes
Print View
Address: 834 E 22 ST
Parcel: 18050033013100
Parcel Sketches
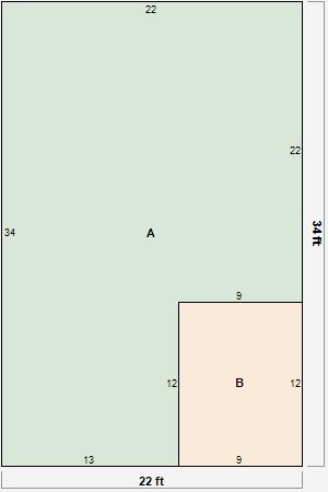
Residential Card 1
A
MAIN
819 square feet
B
EFP ENCL FRAME PORCH
72 square feet
C
UNFIN BSMT BASEMENT UNFINISHED FRBAY FRAME BAY
21 square feet
D
1S FR ONE STORY FRAME
288 square feet
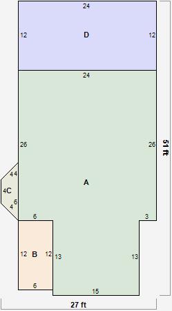
Residential Card 2
A
MAIN
640 square feet
B
OFP OPEN FRAME PORCH 1/2FR FRAME HALF-STORY
108 square feet