Elected Officials
Courts
Departments
Initiatives
Open Government
About
Login / Register
Home
/
Property & Tax Records
/
Property Records
/
Property & Tax Search
/
Parcel Profile
/
Sketches
Search for Another Parcel
Parcel Profile
Historical Card
Sketches
Photos
Tax Map
Taxes
Print View
Address: 805 E 23 ST
Parcel: 18050034011800
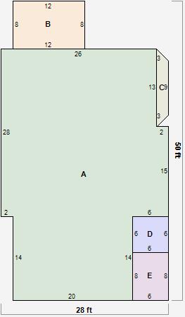
Parcel Sketches
Residential Card 1
A
MAIN
1038 square feet
B
EFP ENCL FRAME PORCH OFP OPEN FRAME PORCH
96 square feet
C
FRBAY FRAME BAY
22 square feet
D
UNFIN BSMT BASEMENT UNFINISHED EFP ENCL FRAME PORCH
36 square feet
E
OFP OPEN FRAME PORCH
48 square feet