Elected Officials
Courts
Departments
Initiatives
Open Government
About
Login / Register
Home
/
Property & Tax Records
/
Property Records
/
Property & Tax Search
/
Parcel Profile
/
Sketches
Search for Another Parcel
Parcel Profile
Historical Card
Sketches
Photos
Tax Map
Taxes
Print View
Address: 2126 EAST AVE
Parcel: 18050037010000
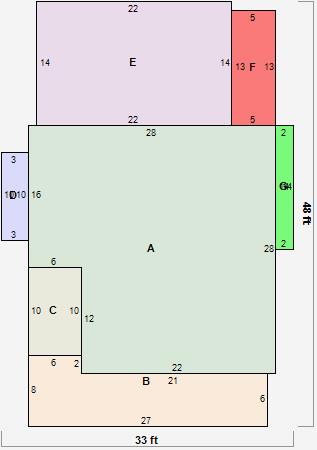
Parcel Sketches
Residential Card 1
A
MAIN
712 square feet
B
OFP OPEN FRAME PORCH
174 square feet
C
EFP ENCL FRAME PORCH
60 square feet
D
UNFIN BSMT BASEMENT UNFINISHED FRBAY FRAME BAY
30 square feet
E
1S FR ONE STORY FRAME
308 square feet
F
1S FR ONE STORY FRAME
65 square feet
G
FROVR FRAME OVERHANG
28 square feet