Elected Officials
Courts
Departments
Initiatives
Open Government
About
Login / Register
Home
/
Property & Tax Records
/
Property Records
/
Property & Tax Search
/
Parcel Profile
/
Sketches
Search for Another Parcel
Parcel Profile
Historical Card
Sketches
Photos
Tax Map
Taxes
Print View
Address: 1036 E 26 ST
Parcel: 18050042013100
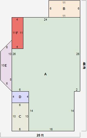
Parcel Sketches
Residential Card 1
A
MAIN
848 square feet
B
EFP ENCL FRAME PORCH
66 square feet
C
OFP OPEN FRAME PORCH
60 square feet
D
1S FR ONE STORY FRAME
24 square feet
E
FROVR FRAME OVERHANG
56 square feet
F
EFP ENCL FRAME PORCH
44 square feet