Elected Officials
Courts
Departments
Initiatives
Open Government
About
Login / Register
Home
/
Property & Tax Records
/
Property Records
/
Property & Tax Search
/
Parcel Profile
/
Sketches
Search for Another Parcel
Parcel Profile
Historical Card
Sketches
Photos
Tax Map
Taxes
Print View
Address: 2411 PENNSYLVANIA AVE
Parcel: 18050043022200
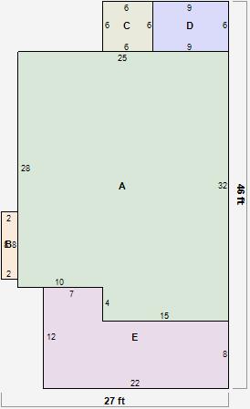
Parcel Sketches
Residential Card 1
A
MAIN
760 square feet
B
FROVR FRAME OVERHANG
16 square feet
C
EFP ENCL FRAME PORCH
36 square feet
D
1S FR ONE STORY FRAME
54 square feet
E
EFP ENCL FRAME PORCH
204 square feet