Elected Officials
Courts
Departments
Initiatives
Open Government
About
Login / Register
Home
/
Property & Tax Records
/
Property Records
/
Property & Tax Search
/
Parcel Profile
/
Sketches
Search for Another Parcel
Parcel Profile
Historical Card
Sketches
Photos
Tax Map
Taxes
Print View
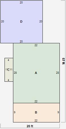
Address: 1212 E 29 ST
Parcel: 18050045021400
Parcel Sketches
Residential Card 1
A
MAIN
616 square feet
B
EFP ENCL FRAME PORCH
198 square feet
C
EFP ENCL FRAME PORCH
44 square feet
D
WDDCK WOOD DECKS
400 square feet