Elected Officials
Courts
Departments
Initiatives
Open Government
About
Login / Register
Home
/
Property & Tax Records
/
Property Records
/
Property & Tax Search
/
Parcel Profile
/
Sketches
Search for Another Parcel
Parcel Profile
Historical Card
Sketches
Photos
Tax Map
Taxes
Print View
Address: 928 E 30 ST
Parcel: 18050053013700
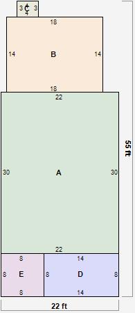
Parcel Sketches
Residential Card 1
A
MAIN
660 square feet
B
1S FR ONE STORY FRAME 1S FR ONE STORY FRAME
252 square feet
C
EFP ENCL FRAME PORCH
12 square feet
D
UNFIN BSMT BASEMENT UNFINISHED 1SMAS MASONRY
112 square feet
E
EFP ENCL FRAME PORCH
64 square feet