Elected Officials
Courts
Departments
Initiatives
Open Government
About
Login / Register
Home
/
Property & Tax Records
/
Property Records
/
Property & Tax Search
/
Parcel Profile
/
Sketches
Search for Another Parcel
Parcel Profile
Historical Card
Sketches
Photos
Tax Map
Taxes
Print View
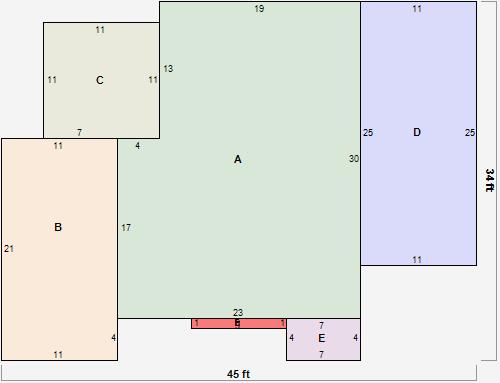
Address: 2904 WAYNE ST
Parcel: 18050061010600
Parcel Sketches
Residential Card 1
A
MAIN
638 square feet
B
FR GR FRAME GARAGE
231 square feet
C
EFP ENCL FRAME PORCH
121 square feet
D
1S FR ONE STORY FRAME
275 square feet
E
MA STOOP/TERR MAS STOOP
28 square feet
F
FRBAY FRAME BAY
9 square feet