Elected Officials
Courts
Departments
Initiatives
Open Government
About
Login / Register
Home
/
Property & Tax Records
/
Property Records
/
Property & Tax Search
/
Parcel Profile
/
Sketches
Search for Another Parcel
Parcel Profile
Historical Card
Sketches
Photos
Tax Map
Taxes
Print View
Address: 734 E 32 ST
Parcel: 18050062013100
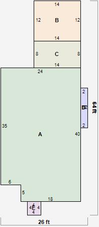
Parcel Sketches
Residential Card 1
A
MAIN
930 square feet
B
WDDCK WOOD DECKS
168 square feet
C
UNFIN BSMT BASEMENT UNFINISHED 1S FR ONE STORY FRAME
112 square feet
D
UNFIN BSMT BASEMENT UNFINISHED 1SMAS MASONRY
24 square feet
E
MA STOOP/TERR MAS STOOP
16 square feet