Elected Officials
Courts
Departments
Initiatives
Open Government
About
Login / Register
Home
/
Property & Tax Records
/
Property Records
/
Property & Tax Search
/
Parcel Profile
/
Sketches
Search for Another Parcel
Parcel Profile
Historical Card
Sketches
Photos
Tax Map
Taxes
Print View
Address: 3213 PINE AVE
Parcel: 18050071010600
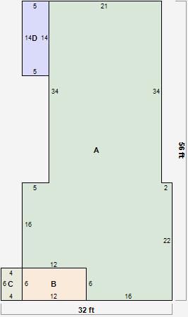
Parcel Sketches
Residential Card 1
A
MAIN
1258 square feet
B
EFP ENCL FRAME PORCH
72 square feet
C
MA STOOP/TERR MAS STOOP
24 square feet
D
1S FR ONE STORY FRAME
70 square feet