Elected Officials
Courts
Departments
Initiatives
Open Government
About
Login / Register
Home
/
Property & Tax Records
/
Property Records
/
Property & Tax Search
/
Parcel Profile
/
Sketches
Search for Another Parcel
Parcel Profile
Historical Card
Sketches
Photos
Tax Map
Taxes
Print View
Address: 3103 05 PINE AVE
Parcel: 18050073010400
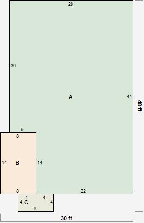
Parcel Sketches
Residential Card 1
A
MAIN
650 square feet
B
OMP OPEN MASONRY PORCH
64 square feet
C
OMP OPEN MASONRY PORCH
80 square feet
D
OMP OPEN MASONRY PORCH 1S FR ONE STORY FRAME
64 square feet
Residential Card 2
A
MAIN
1148 square feet
B
OFP OPEN FRAME PORCH OFP OPEN FRAME PORCH
112 square feet
C
MA_PT CONC/MAS PATIO
32 square feet