Elected Officials
Courts
Departments
Initiatives
Open Government
About
Login / Register
Home
/
Property & Tax Records
/
Property Records
/
Property & Tax Search
/
Parcel Profile
/
Sketches
Search for Another Parcel
Parcel Profile
Historical Card
Sketches
Photos
Tax Map
Taxes
Print View
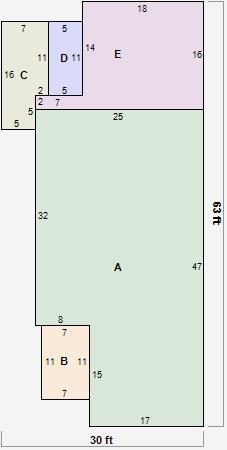
Address: 455 E 27 ST
Parcel: 18050077010200
Parcel Sketches
Residential Card 1
A
MAIN
1055 square feet
B
EFP ENCL FRAME PORCH EFP ENCL FRAME PORCH
77 square feet
C
EFP ENCL FRAME PORCH
102 square feet
D
CANPY CANOPY
55 square feet
E
1S FR ONE STORY FRAME
302 square feet