Elected Officials
Courts
Departments
Initiatives
Open Government
About
Login / Register
Home
/
Property & Tax Records
/
Property Records
/
Property & Tax Search
/
Parcel Profile
/
Sketches
Search for Another Parcel
Parcel Profile
Historical Card
Sketches
Photos
Tax Map
Taxes
Print View
Address: 333 E 29 ST
Parcel: 18050079011300
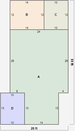
Parcel Sketches
Residential Card 1
A
MAIN
806 square feet
B
MA_PT CONC/MAS PATIO
168 square feet
C
EFP ENCL FRAME PORCH
120 square feet
D
EFP ENCL FRAME PORCH
130 square feet