Elected Officials
Courts
Departments
Initiatives
Open Government
About
Login / Register
Home
/
Property & Tax Records
/
Property Records
/
Property & Tax Search
/
Parcel Profile
/
Sketches
Search for Another Parcel
Parcel Profile
Historical Card
Sketches
Photos
Tax Map
Taxes
Print View
Address: 2701 HOLLAND ST
Parcel: 18050081012100
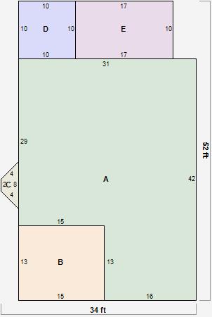
Parcel Sketches
Residential Card 1
A
MAIN
1107 square feet
B
OFP OPEN FRAME PORCH
195 square feet
C
FRBAY FRAME BAY
15 square feet
D
OFP OPEN FRAME PORCH
100 square feet
E
1S FR ONE STORY FRAME
170 square feet