Elected Officials
Courts
Departments
Initiatives
Open Government
About
Login / Register
Home
/
Property & Tax Records
/
Property Records
/
Property & Tax Search
/
Parcel Profile
/
Sketches
Search for Another Parcel
Parcel Profile
Historical Card
Sketches
Photos
Tax Map
Taxes
Print View
Address: 2611 HOLLAND ST
Parcel: 18050081022100
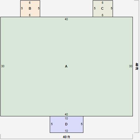
Parcel Sketches
Residential Card 1
A
MAIN
1200 square feet
B
EFP ENCL FRAME PORCH
30 square feet
C
EFP ENCL FRAME PORCH
30 square feet
D
OMP OPEN MASONRY PORCH
50 square feet