Elected Officials
Courts
Departments
Initiatives
Open Government
About
Login / Register
Home
/
Property & Tax Records
/
Property Records
/
Property & Tax Search
/
Parcel Profile
/
Sketches
Search for Another Parcel
Parcel Profile
Historical Card
Sketches
Photos
Tax Map
Taxes
Print View
Address: 103 E 29 ST
Parcel: 18050085012300
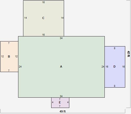
Parcel Sketches
Residential Card 1
A
MAIN
816 square feet
B
EMP ENCL MASONRY PORCH OFP OPEN FRAME PORCH
84 square feet
C
WDDCK WOOD DECKS
224 square feet
D
UNFIN BSMT BASEMENT UNFINISHED EMP ENCL MASONRY PORCH
128 square feet
E
MA STOOP/TERR MAS STOOP
28 square feet