Elected Officials
Courts
Departments
Initiatives
Open Government
About
Login / Register
Home
/
Property & Tax Records
/
Property Records
/
Property & Tax Search
/
Parcel Profile
/
Sketches
Search for Another Parcel
Parcel Profile
Historical Card
Sketches
Photos
Tax Map
Taxes
Print View
Address: 155 E 28 ST
Parcel: 18050085022700
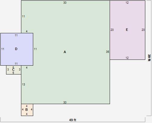
Parcel Sketches
Residential Card 1
A
MAIN
1006 square feet
B
EFP ENCL FRAME PORCH
16 square feet
C
OFP OPEN FRAME PORCH
15 square feet
D
1S FR ONE STORY FRAME
121 square feet
E
OFP OPEN FRAME PORCH
240 square feet