Elected Officials
Courts
Departments
Initiatives
Open Government
About
Login / Register
Home
/
Property & Tax Records
/
Property Records
/
Property & Tax Search
/
Parcel Profile
/
Sketches
Search for Another Parcel
Parcel Profile
Historical Card
Sketches
Photos
Tax Map
Taxes
Print View
Address: 3016 HOLLAND ST
Parcel: 18050086020300
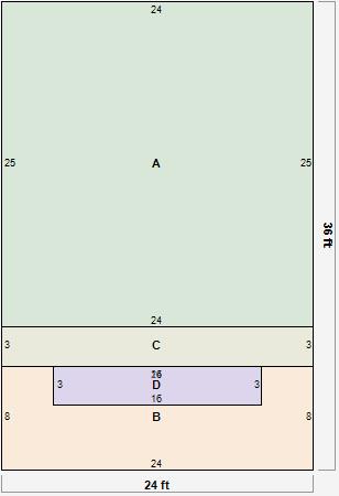
Parcel Sketches
Residential Card 1
A
MAIN
600 square feet
B
OMP OPEN MASONRY PORCH
192 square feet
C
UNFIN BSMT BASEMENT UNFINISHED 1SMAS MASONRY AT FN ATTIC-FINISHED
72 square feet
D
OMP OPEN MASONRY PORCH AT FN ATTIC-FINISHED
48 square feet