Elected Officials
Courts
Departments
Initiatives
Open Government
About
Login / Register
Home
/
Property & Tax Records
/
Property Records
/
Property & Tax Search
/
Parcel Profile
/
Sketches
Search for Another Parcel
Parcel Profile
Historical Card
Sketches
Photos
Tax Map
Taxes
Print View
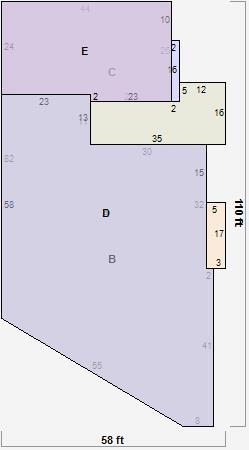
Address: 2601 05 PEACH ST
Parcel: 18050089021200
Parcel Sketches
Commercial Card 1
A
MAIN
4690 square feet
B
MAIN
3677 square feet
C
MAIN
1543 square feet
D
MAIN
4722 square feet
E
MAIN
824 square feet