Elected Officials
Courts
Departments
Initiatives
Open Government
About
Login / Register
Home
/
Property & Tax Records
/
Property Records
/
Property & Tax Search
/
Parcel Profile
/
Sketches
Search for Another Parcel
Parcel Profile
Historical Card
Sketches
Photos
Tax Map
Taxes
Print View
Address: 124 HILL RD
Parcel: 18050089021900
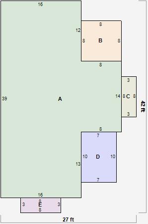
Parcel Sketches
Residential Card 1
A
MAIN
736 square feet
B
EFP ENCL FRAME PORCH
64 square feet
C
UNFIN BSMT BASEMENT UNFINISHED FRBAY FRAME BAY
24 square feet
D
EFP ENCL FRAME PORCH
70 square feet
E
UNFIN BSMT BASEMENT UNFINISHED FRBAY FRAME BAY
24 square feet