Elected Officials
Courts
Departments
Initiatives
Open Government
About
Login / Register
Home
/
Property & Tax Records
/
Property Records
/
Property & Tax Search
/
Parcel Profile
/
Sketches
Search for Another Parcel
Parcel Profile
Historical Card
Sketches
Photos
Tax Map
Taxes
Print View
Address: 231 E 32 ST
Parcel: 18050092021200
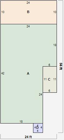
Parcel Sketches
Residential Card 1
A
MAIN
864 square feet
B
1S FR ONE STORY FRAME
240 square feet
C
OFP OPEN FRAME PORCH
66 square feet
D
MA STOOP/TERR MAS STOOP
16 square feet