Elected Officials
Courts
Departments
Initiatives
Open Government
About
Login / Register
Home
/
Property & Tax Records
/
Property Records
/
Property & Tax Search
/
Parcel Profile
/
Sketches
Search for Another Parcel
Parcel Profile
Historical Card
Sketches
Photos
Tax Map
Taxes
Print View
Address: 1263 BUFFALO RD
Parcel: 18051001020600
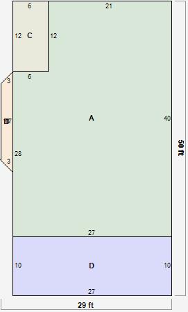
Parcel Sketches
Residential Card 1
A
MAIN
1008 square feet
B
UNFIN BSMT BASEMENT UNFINISHED MABAY MASONRY BAY MABAY MASONRY BAY
30 square feet
C
EMP ENCL MASONRY PORCH
72 square feet
D
EMP ENCL MASONRY PORCH
270 square feet