Elected Officials
Courts
Departments
Initiatives
Open Government
About
Login / Register
Home
/
Property & Tax Records
/
Property Records
/
Property & Tax Search
/
Parcel Profile
/
Sketches
Search for Another Parcel
Parcel Profile
Historical Card
Sketches
Photos
Tax Map
Taxes
Print View
Address: 3014 TUTTLE AVE
Parcel: 18051006030200
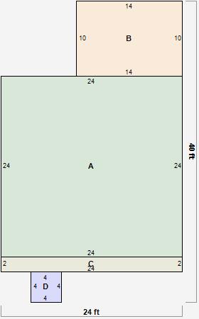
Parcel Sketches
Residential Card 1
A
MAIN
576 square feet
B
WDDCK WOOD DECKS
140 square feet
C
FROVR FRAME OVERHANG
48 square feet
D
MA_PT CONC/MAS PATIO
16 square feet