Elected Officials
Courts
Departments
Initiatives
Open Government
About
Login / Register
Home
/
Property & Tax Records
/
Property Records
/
Property & Tax Search
/
Parcel Profile
/
Sketches
Search for Another Parcel
Parcel Profile
Historical Card
Sketches
Photos
Tax Map
Taxes
Print View
Address: 3119 ZIMMERMAN RD
Parcel: 18051022011300
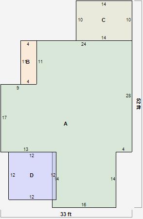
Parcel Sketches
Residential Card 1
A
MAIN
1049 square feet
B
OFP OPEN FRAME PORCH
44 square feet
C
FR UT FRAME UTILITY BUILDING
140 square feet
D
OFP OPEN FRAME PORCH
144 square feet