Elected Officials
Courts
Departments
Initiatives
Open Government
About
Login / Register
Home
/
Property & Tax Records
/
Property Records
/
Property & Tax Search
/
Parcel Profile
/
Sketches
Search for Another Parcel
Parcel Profile
Historical Card
Sketches
Photos
Tax Map
Taxes
Print View
Address: 2303 DOWNING AVE
Parcel: 18051025031500
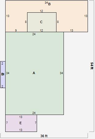
Parcel Sketches
Residential Card 1
A
MAIN
816 square feet
B
WDDCK WOOD DECKS
346 square feet
C
UNFIN BSMT BASEMENT UNFINISHED 1S FR ONE STORY FRAME
96 square feet
D
FRBAY FRAME BAY
22 square feet
E
EFP ENCL FRAME PORCH
91 square feet