Elected Officials
Courts
Departments
Initiatives
Open Government
About
Login / Register
Home
/
Property & Tax Records
/
Property Records
/
Property & Tax Search
/
Parcel Profile
/
Sketches
Search for Another Parcel
Parcel Profile
Historical Card
Sketches
Photos
Tax Map
Taxes
Print View
Address: 2309 JUNE ST
Parcel: 18051032030300
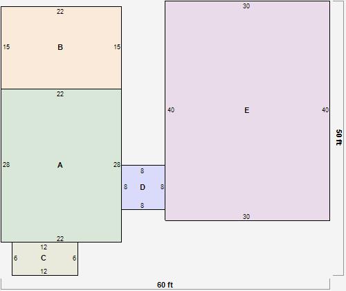
Parcel Sketches
Residential Card 1
A
MAIN
616 square feet
B
1S FR ONE STORY FRAME
330 square feet
C
OFP OPEN FRAME PORCH
72 square feet
D
EFP ENCL FRAME PORCH
64 square feet
E
FR GR FRAME GARAGE
1200 square feet