Elected Officials
Courts
Departments
Initiatives
Open Government
About
Login / Register
Home
/
Property & Tax Records
/
Property Records
/
Property & Tax Search
/
Parcel Profile
/
Sketches
Search for Another Parcel
Parcel Profile
Historical Card
Sketches
Photos
Tax Map
Taxes
Print View
Address: 2426 GLENDALE AVE
Parcel: 18051040022000
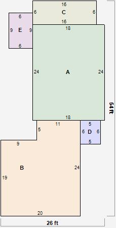
Parcel Sketches
Residential Card 1
A
MAIN
432 square feet
B
1S FR ONE STORY FRAME
435 square feet
C
EFP ENCL FRAME PORCH
96 square feet
D
MA STOOP/TERR MAS STOOP
30 square feet
E
WDDCK WOOD DECKS
54 square feet