Elected Officials
Courts
Departments
Initiatives
Open Government
About
Login / Register
Home
/
Property & Tax Records
/
Property Records
/
Property & Tax Search
/
Parcel Profile
/
Sketches
Search for Another Parcel
Parcel Profile
Historical Card
Sketches
Photos
Tax Map
Taxes
Print View
Address: 1030 E 37 ST
Parcel: 18052002022500
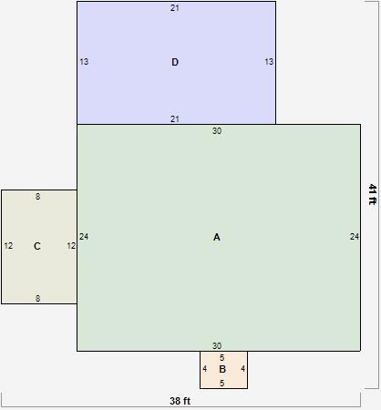
Parcel Sketches
Residential Card 1
A
MAIN
720 square feet
B
MA STOOP/TERR MAS STOOP
20 square feet
C
WDDCK WOOD DECKS
96 square feet
D
WDDCK WOOD DECKS
273 square feet