Address: 4117 PINE AVE   Parcel: 18052004030700

Parcel Sketches


Residential Card 1

Residential Card 1
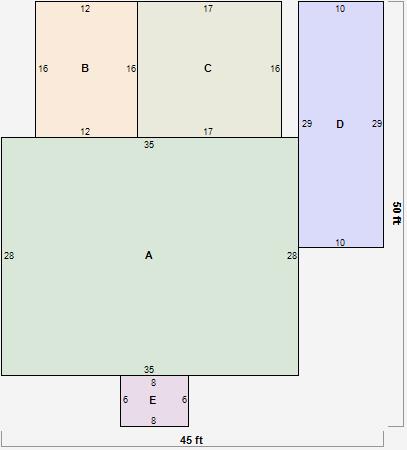
AMAIN980 square feet
BUNFIN BSMT BASEMENT UNFINISHED EFP ENCL FRAME PORCH 1S FR ONE STORY FRAME 192 square feet
CUNFIN BSMT BASEMENT UNFINISHED 1S FR ONE STORY FRAME 1S FR ONE STORY FRAME 272 square feet
DUNFIN BSMT BASEMENT UNFINISHED 1S FR ONE STORY FRAME 290 square feet
E OFP OPEN FRAME PORCH 48 square feet