Elected Officials
Courts
Departments
Initiatives
Open Government
About
Login / Register
Home
/
Property & Tax Records
/
Property Records
/
Property & Tax Search
/
Parcel Profile
/
Sketches
Search for Another Parcel
Parcel Profile
Historical Card
Sketches
Photos
Tax Map
Taxes
Print View
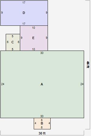
Address: 4306 PINE AVE
Parcel: 18052007021400
Parcel Sketches
Residential Card 1
A
MAIN
720 square feet
B
MA STOOP/TERR MAS STOOP
24 square feet
C
OFP OPEN FRAME PORCH
30 square feet
D
MA_PT CONC/MAS PATIO
153 square feet
E
EFP ENCL FRAME PORCH
90 square feet