Elected Officials
Courts
Departments
Initiatives
Open Government
About
Login / Register
Home
/
Property & Tax Records
/
Property Records
/
Property & Tax Search
/
Parcel Profile
/
Sketches
Search for Another Parcel
Parcel Profile
Historical Card
Sketches
Photos
Tax Map
Taxes
Print View
Address: 1140 E 38 ST
Parcel: 18052011063000
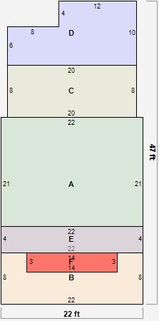
Parcel Sketches
Residential Card 1
A
MAIN
462 square feet
B
EFP ENCL FRAME PORCH
176 square feet
C
1S FR ONE STORY FRAME
160 square feet
D
WDDCK WOOD DECKS
168 square feet
E
UNFIN BSMT BASEMENT UNFINISHED 1S FR ONE STORY FRAME 1/2FR FRAME HALF-STORY
88 square feet
F
EFP ENCL FRAME PORCH 1S FR ONE STORY FRAME
42 square feet