Elected Officials
Courts
Departments
Initiatives
Open Government
About
Login / Register
Home
/
Property & Tax Records
/
Property Records
/
Property & Tax Search
/
Parcel Profile
/
Sketches
Search for Another Parcel
Parcel Profile
Historical Card
Sketches
Photos
Tax Map
Taxes
Print View
Address: 1545 E 38 ST
Parcel: 18052025010100
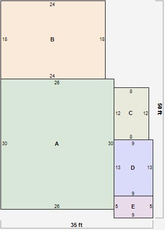
Parcel Sketches
Residential Card 1
A
MAIN
780 square feet
B
1S FR ONE STORY FRAME
432 square feet
C
OFP OPEN FRAME PORCH
96 square feet
D
1S FR ONE STORY FRAME
117 square feet
E
OFP OPEN FRAME PORCH
45 square feet