Elected Officials
Courts
Departments
Initiatives
Open Government
About
Login / Register
Home
/
Property & Tax Records
/
Property Records
/
Property & Tax Search
/
Parcel Profile
/
Sketches
Search for Another Parcel
Parcel Profile
Historical Card
Sketches
Photos
Tax Map
Taxes
Print View
Address: 3922 CONRAD RD
Parcel: 18052032010600
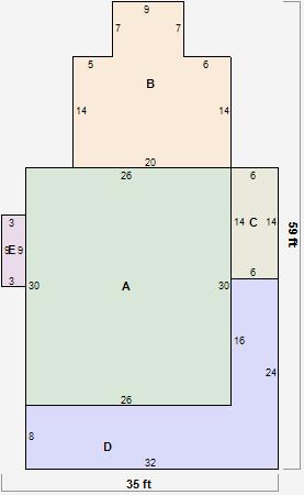
Parcel Sketches
Residential Card 1
A
MAIN
780 square feet
B
EFP ENCL FRAME PORCH
343 square feet
C
1S FR ONE STORY FRAME
84 square feet
D
OFP OPEN FRAME PORCH
352 square feet
E
FRBAY FRAME BAY
27 square feet