Elected Officials
Courts
Departments
Initiatives
Open Government
About
Login / Register
Home
/
Property & Tax Records
/
Property Records
/
Property & Tax Search
/
Parcel Profile
/
Sketches
Search for Another Parcel
Parcel Profile
Historical Card
Sketches
Photos
Tax Map
Taxes
Print View
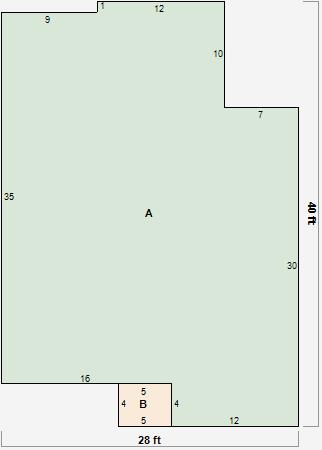
Address: 4213 FARGO ST
Parcel: 18052034012500
Parcel Sketches
Residential Card 1
A
MAIN
977 square feet
B
EFP ENCL FRAME PORCH
20 square feet