Elected Officials
Courts
Departments
Initiatives
Open Government
About
Login / Register
Home
/
Property & Tax Records
/
Property Records
/
Property & Tax Search
/
Parcel Profile
/
Sketches
Search for Another Parcel
Parcel Profile
Historical Card
Sketches
Photos
Tax Map
Taxes
Print View
Address: 1339 E 40 ST
Parcel: 18052042011100
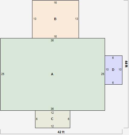
Parcel Sketches
Residential Card 1
A
MAIN
900 square feet
B
OFP OPEN FRAME PORCH
208 square feet
C
WDDCK WOOD DECKS
72 square feet
D
EFP ENCL FRAME PORCH
60 square feet