Elected Officials
Courts
Departments
Initiatives
Open Government
About
Login / Register
Home
/
Property & Tax Records
/
Property Records
/
Property & Tax Search
/
Parcel Profile
/
Sketches
Search for Another Parcel
Parcel Profile
Historical Card
Sketches
Photos
Tax Map
Taxes
Print View
Address: 2317 E 43 ST
Parcel: 18052055021100
Parcel Sketches
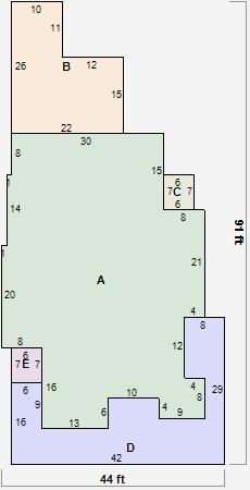
Residential Card 1
A
MAIN
1916 square feet
B
1S FR ONE STORY FRAME
440 square feet
C
OFP OPEN FRAME PORCH
42 square feet
D
OFP OPEN FRAME PORCH
562 square feet
E
EFP ENCL FRAME PORCH
42 square feet
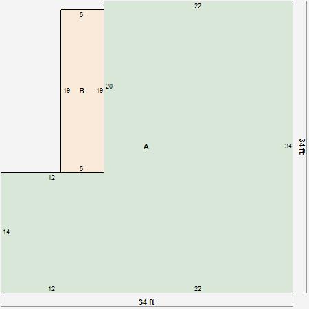
Residential Card 2
A
MAIN
916 square feet
B
OFP OPEN FRAME PORCH
95 square feet