Elected Officials
Courts
Departments
Initiatives
Open Government
About
Login / Register
Home
/
Property & Tax Records
/
Property Records
/
Property & Tax Search
/
Parcel Profile
/
Sketches
Search for Another Parcel
Parcel Profile
Historical Card
Sketches
Photos
Tax Map
Taxes
Print View
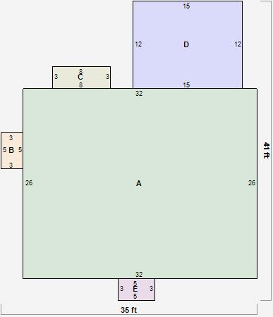
Address: 2541 E 43 ST
Parcel: 18052057020300
Parcel Sketches
Residential Card 1
A
MAIN
832 square feet
B
MA STOOP/TERR MAS STOOP
15 square feet
C
FRBAY FRAME BAY
24 square feet
D
MA_PT CONC/MAS PATIO
180 square feet
E
MA STOOP/TERR MAS STOOP
15 square feet